KRISTIANSAND S
Tangen 19
Kort om eiendommen
Spareskillingsmegleren ved Alex Modahl har gleden av å presentere Tangen 19 – en moderne og stilfull 4-roms selveierleilighet midt på populære Tangen Torv! Leiligheten byr på en gjennomtenkt planløsning, store vindusflater, høy standard og hele to innglassede balkonger – til sammen 29,4 kvm – som gir gode sol- og oppholdsforhold. Her bor du sjønært, sentralt og urbant, med gangavstand til alt du trenger i hverdagen. Høydepunkter: - Lys og moderne 4-roms leilighet - 3 soverom - 2 balkonger – totalt ca 30 kvm - Gjennomgående høy og eksklusiv standard - Heis i bygget - Mulighet for kjøp av parkeringsplass (kr 650 000) - Sentralt og sjønært beliggende – alt innen gangavstand Denne leiligheten må oppleves – velkommen til visning!
Nøkkelinfo
Prisantydning
7 490 000 kr
Omkostninger
35 582 kr
Totalpris
7 525 582 kr
Etasjer
6
Byggeår
2025
Soverom
3
Bad
2
Areal
93.7 m²
Type
Eierseksjon
Eierform
Eierseksjon
Fellesutgifter
3 689 kr
Andel Fellesformue
-
Andel fellesgjeld
-
energimerking
-
Antall rom
4
Tomteareal
7583
Fasiliteter
Balkong, Parkett, Heis, Barnevennlig, Rolig, Garasje, Off. vann og avløp, Utsikt, Bredbånd, Sentralt, Badeplass/muligheter, Fiskemuligheter, Turterreng, Balansert ventilasjon
Salgsoppgave
Åpne salgsoppgave (.pdf)Innhold
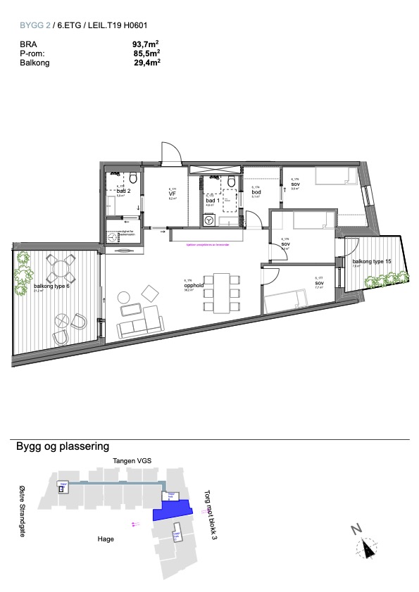
Velkommen inn!Gang/Entrè, Bad/vaskerom, Stue, Kjøkken, Balkong, Soverom, Soverom 2, Soverom 3, Balkong 2, Bad 2
Byggemåte
Det foreligger ikke tilstandsrapport med arealoppmåling på boligen. Alle innvendige og utvendige arealangivelser er hentet fra tegninger.Standard
Velkommen til en flott leilighet på Tangen 19!Her bor du med kort vei til "alt" du måtte trenge – butikker, kollektivtransport, sjøen og andre fasiliteter rett i nærheten.
Det er adkomst til leiligheten via trapp/heis, og byr på en praktisk og romslig planløsning.
Inngangspartiet ønsker deg velkommen med god plass til å henge fra seg sko og yttertøy. Herfra har du tilgang til et moderne, flislagt bad med opplegg for vaskemaskin.
Stue og kjøkken er i en åpen og sosial løsning, med store vindusflater som gir godt lysinnslipp. Fra stuen er det utgang til en stor, solrik balkong – perfekt for å nyte late dager med grill, utemøbler og hyggelige sammenkomster.
Kjøkkenet er levert av Strai, og fremstår moderne og funksjonelt med rikelig skapplass og gode arbeidsflater.
Leiligheten har tre gode soverom. Ett av soverommene har utgang til balkongen, mens hovedsoverommet har en praktisk mellomgang som leder til et ekstra, delikat og flislagt bad – perfekt som en privat sone.
Velkommen til visning - dette er leiligheten du bør få med deg!
Løsøre og tilbehør
Vi viser til liste fra Norges Eiendomsmeglerforbund som gjelder fra 01.01.2020 angående løsøre og tilbehør.Oppvarming
Fjernvarme og elektrisitetFerdigattest/brukstillatelse
Der foreligger midlertidig brukstillatelse.Det gjøres oppmerksom på at det ikke lenger utstedes ferdigattest på tiltak det er søkt om før 1998 jf. plan- og bygningsloven § 21-10. Kommunen vil ikke kreve ferdigattest for disse tiltakene og vil avvise eventuelle søknader. Bestemmelsen innebærer ikke at tiltak med manglende søknad blir lovlige, men at man ikke trenger å avslutte gamle byggesaker. Normalt sett kreves ferdigattest for alle søknadspliktige tiltak som gjøres etter plan- og bygningsloven.
Kjøper overtar alt ansvar, kostnad og risiko for dette videre.
Megler har innhentet boligens tegninger fra kommunen og har rutinemessig samholdt de med eiendommens faktiske planløsning, med fokus på om det er foretatt tiltak/endringer av bebyggelsen som evt. er søknadspliktige.
Megler har forsøket å avdekke såkalte lovlighetsmangler (utførte tiltak som er søknadpliktige men ikke godkjente). Det bemerkes at selv om megler foretar denne kontrollen er det ingen garanti for at det ikke kan forekomme forhold på eiendommen som ikke er i samsvar med søknad, lover og forskrifter.
Tinglyste heftelser og rettigheter
-Eventuell adgang til utleie
Det er tillatt å leie ut hele eller deler av egen bolig. Eiendommen har ikke separat utleieenhet. Det vil normalt være anledning til utleie av hele eiendommen eller enkeltrom, såfremt utleiearealet er bygningsmessig godkjent for varig opphold og har forsvarlige radonnivåer.Korttidsleie eierseksjon setter begrensninger for utleie :Utleie av eierseksjon i mer en 90 døgn årlig er ikke tilatt. Eierseksjonsloven med korttidsutleie menes utleie inntil 30 døgn sammenhengende. Grense på 90 døgn kan fravikes i vedtektene og kan i så fall settes til mellom 60 og 120 døgn
Beliggenhet
Eiendommen ligger flott til, omringet av sjønære omgivelser med sol fra morgen til sen kveld. Området er regnet som et av Kvadraturens mest attraktive områder og tilbyr i gangavstand på et bredt tilbud av aktiviteter i Aquarama, Kilden i tillegg til et rikt utvalg av restauranter, nærmest er nye La Racette som ligger på området.Det er kort vei til Coop Extra Tangen, Rema 1000 Tangen og Kiwi Elvegata, ca. 6 og 7 min gange fra leiligheter. Ellers er det muligheter for å legge shoppingturen til Sandens Kjøpesenter eller Torvkvartalet om det er ønskelig med ytterligere servicetjenester.
Nærhet til Bystranda med båthavn og fine bademuligheter. Det er god tilknytning til offentlig kommunikasjon med buss fra Kvadraturen videregående skole, ca 9 min gange unna. Kristiansand stasjon og Kristiansand Kjevik flyplass ligger heller ikke langt unna
Adkomst
Se vedlagt kartskisse på høyre i annonsen. Ved å trykke på kartet får du enkelt adgang til enspesifisert reiserute fra din startdestinasjon til boligen.
Det vil bli skiltet med visningsskilt fra Spareskillingsmegleren under annonserte visninger.
Barnehager, skoler og fritid
Se vedlagt nabolagsprofil i salgsoppgaven.Beskrivelse av tomt
Pen opparbeidet felles tomt for sameiet.Parkering
Mulighet for å kjøpe parkeringsplass i garasje under leiligheten, for pris: 650 000.Vei, vann og avløp
Stikkledninger fra eiendommen og ut til kommunalt nett er å anse som privat, hvor eier av eiendommen har vedlikeholdsansvaret.Regulerings-og arealplaner
Eiendommen er regulert til bolig iht. reguleringsplan Tangen B1 - del av Tangen 1-11 med ID 1331 datert 16.09.2015.Det er andre bygg i området som ikke er ferdige.
Fellesutgifter
Driftskostnader 3 290 (kr. 35,- pr kvm pr mnd.)Telia 399
Kommunale utgifter
-Formuesverdi
-Eiendomsskatt
-Omkostninger
7 490 000,- (Prisantydning)0,- (Andel av fellesgjeld)
Omkostninger:
10 900,- (Boligkjøperforsikring (valgfritt))
172,- (Pantattest kjøper - lagt ut av megler)
545,- (Tingl.gebyr pantedokument)
545,- (Tingl.gebyr skjøte)
23 420,- (Dokumentavgift (forutsatt salgssum: 7 490 000,00))
35 582,- (Omkostninger totalt)
7 525 582,- (Totalpris inkl. omkostninger)
Tilbud om lånefinansiering
Ta kontakt med megler som vil sette deg i kontakt med en dyktig rådgiver i Spareskillingsbanken.Betalingsbetingelser
I henhold til lov om hvitvasking og terrorfinansiering har megler plikt til å gjennomføre kontrolltiltak ovenfor kunder. Dette innebærer å bekrefte kunders identitet på bakgrunn av fremvist gyldig legitimasjon. Videre innebærer det å få bekreftet identiteten til eventuelle reelle rettighetshavere, og å innhente opplysninger om kundeforholdets formål og tilsiktede art.Dersom slike kundetiltak ikke kan gjennomføres kan megler ikke etablere kundeforholdet eller utføre transaksjonen.
Kjøper oppfordres til å innbetale kjøpesummen som ikke kommer fra låneinstitusjon, i en samlet innbetaling fra egen konto i norsk bank.
Dersom megler får mistanke om brudd på hvitvaskingsreglementet i forbindelse med en eiendomshandel, og han ikke klarer å få avkreftet denne mistanke, har han plikt til å rapportere dette til Økokrim.
Melding sendes Økokrim uten at partene varsles. Megler kan i enkelte tilfeller også ha plikt til å stanse gjennomføring av handelen. Kjøpesum inkludert omkostninger skal være innbetalt til Spareskillingsmegleren sin klientkonto før overtakelse.
Eier
Sameiet Tangen TorvBoligselgerforsikring
Det er ikke tegnet boligselgerforsikring.Boligkjøperforsikring
Mange kjøpere har anledning til å tegne boligkjøperforsikring. Vedlagt i salgsoppgaven følger informasjon om Boligkjøperforsikring fra HELP Forsikring AS. Boligkjøperforsikring er en rettshjelpsforsikring som gir trygghet og profesjonell juridisk hjelp dersom det oppdages uventede feil eller mangler ved boligen de neste fem årene. Les mer om Boligkjøperforsikring i vedlagte materiell eller på help.no. Det gjøres oppmerksom på at meglerforetaket mottar kr 4 700,- / 5 200,- / 6 800,- i kostnadsgodtgjørelse for Boligkjøperforsikring (avhengig av boligtype).Budgivning
Bud kan legges inn på nettannonsen på "gi bud" knappen eller via hjemmesiden. Ved elektronisk budgivning så kan bud legges inn trygt og enkelt med bank-ID. Megler kan også kontaktes for tilsendelse av budkjema og budskjema finnes også i salgsoppgaven.All budgivning må foregå ved skriftlighet. Ikke nøl med å ta kontakt dersom det er behov for bistand for å gi bud.
Eiendomsmegler skal legge til rette for en forsvarlig avvikling av budrunden og kan ikke videreformidle bud med en kortere akseptfrist enn kl. 12.00 første virkedag etter siste annonserte visning. Etter klokken 11:30 anbefaler vi akseptfrist på minimum 30 minutter.
Hvitvaskingsreglene
Eiendomsmeglere er underlagt lov om hvitvasking og er forpliktet til å rapportere til Økokrim om mistenkelige transaksjoner. Lov om hvitvasking innehar også strenge regler om kontroll av legitimasjon fra alle parter i handelen, herunder, selger, kjøper og fullmektiger for disse.Personopplysningsloven
Personopplysninger blir behandlet i samsvar med personopplysningsloven.Lovanvendelse
Tilbehørsliste som er utarbeidet av meglerbransjen i fellesskap er inntatt i salgsoppgaven, og gjelder dersom ikke annet er særskilt avtalt.Generelle bestemmelser
Salgsoppgaven er basert på de opplysningene selger har gitt til megler, den bygningssakyndiges tilstandsrapport, samt opplysninger innhentet fra kommunen, Kartverket og andre tilgjengelige kilder. Det er viktig at kjøper setter seg grundig inn i alle salgsdokumentene, herunder salgsoppgave, tilstandsrapport og selgers egenerklæring. Kjøper anses kjent med forhold som er tydelig beskrevet i salgsdokumentene, og slike forhold kan ikke påberopes som mangler. Dette gjelder uavhengig av om kjøper har lest dokumentene. Alle interessenter oppfordres til å undersøke eiendommen nøye, gjerne sammen med fagkyndig før bud inngis. Kjøper som velger å kjøpe usett kan ikke gjøre gjeldende som mangel noe han burde blitt kjent med ved undersøkelsen.
Dersom det er behov for avklaringer, anbefaler vi at interessenter rådfører seg med eiendomsmegler eller egne rådgivere før det legges inn bud.
En bolig som har blitt brukt i en viss tid, har vanligvis blitt utsatt for slitasje og skader kan ha oppstått. Slik bruksslitasje må kjøper regne med, og det kan avdekkes enkelte forhold etter overtakelse som nødvendiggjør utbedringer. Normal slitasje og skader som nødvendiggjør utbedring, er innenfor hva kjøper må forvente og vil ikke utgjøre en mangel.
Kjøper og selgers rettigheter og plikter reguleres av avtalen mellom partene, samt informasjonen som har vært tilgjengelig for kjøperen i forbindelse med handelen. Avtalen utfylles av avhendingsloven, og det gjelder ulike avtalevilkår avhengig av om kjøper er forbrukerkjøper eller ikke. Dette er nærmere beskrevet nedenfor.
På grunn av ulike avtalevilkår kan selger vurdere bud fra en som ikke er forbruker, ulikt fra en forbrukers bud. Dersom kjøper ikke er forbruker, er selger sitt mulige mangelsansvar begrenset fordi eiendommen selges "som den er". Selger kan ikke ta «som den er» forbehold ovenfor en forbrukerkjøper. Selv et lavere bud fra en som ikke er forbruker kan foretrekkes fordi begrensningen i mulig mangelsansvar kan ha egenverdi for selger. Selger står fritt til å forkaste eller akseptere ethvert bud, og er for eksempel ikke forpliktet til å akseptere høyeste bud.
Budgiver skal i budskjema avgi egenerklæring om budgiver er forbruker eller næringsdrivende/ person som hovedsakelig handler som ledd i næringsvirksomhet. Budgivere får informasjon dersom andre bud er inngitt av en som ikke er forbruker. Forbrukerkjøp - definisjon Med forbrukerkjøp menes kjøp av eiendom når kjøperen er en fysisk person som ikke hovedsakelig handler som ledd i næringsvirksomhet.
Forbruker – avtalevilkår Eiendommen har en mangel dersom den ikke er i samsvar med kravene som følger av avtalen, eller det foreligger brudd på bestemmelsene i avhendingsloven §§ 3-2 til 3-8. Hvis eiendommen ikke er i samsvar med det kjøperen må kunne forvente ut ifra alder, type og synlig tilstand, kan det være grunnlag for mangelskrav. Det samme gjelder hvis det er holdt tilbake eller gitt uriktige opplysninger om eiendommen. Dette gjelder likevel bare dersom man kan gå ut ifra at det virket inn på avtalen at opplysningen ikke ble gitt eller at uriktige opplysninger ikke blir rettet i tide på en tydelig måte.
Boligen kan ha en mangel etter avhendingsloven § 3-3 dersom det er avvik mellom opplyst og faktisk innvendig areal, forutsatt at avviket er på 2% eller mer og minimum 1 kvm. Ved beregning av et eventuelt prisavslag eller erstatning må kjøper selv dekke tap/ kostnader opptil et beløp på kr 10 000 (egenandel). Ikke-forbruker (næringsdrivende) – definisjon Hvis kjøper er en juridisk person, eller en fysisk person som hovedsakelig handler som ledd i næringsvirksomhet, vil kjøpet ikke anses som et forbrukerkjøp.
Ikke-forbruker – avtalevilkår Eiendommen har en mangel dersom den ikke er i samsvar med kravene som følger av avtalen. Eiendommen selges «som den er», og selgers ansvar utover det konkret avtalte er da begrenset etter avhendingsloven § 3-9, første ledd andre setning.
Avhendingsloven § 3-3 andre ledd fravikes, og hvorvidt boligens arealsvikt utgjør en mangel vurderes etter avhendingsloven § 3-8. Informasjon om kjøpers undersøkelsesplikt, herunder oppfordringen om å undersøke eiendommen nøye, gjelder også for kjøpere som ikke anses som forbrukere.
Meglers vederlag
Vederlag kr 38.000,-Tilretteleggingsgebyr kr 10.000,-
Utskrift/oppslag av heftelser/servitutter kr 2.200,-
Oppgjørshonorar kr 8.900,-
Visninger kr 2.000,- pr stk
Markedspakke kr 22. 500,-
Dato
Sist oppdatert: 20. januar 2026 kl. 13:29Område
Megler

Alex Modahl
Daglig leder - Eiendomsmegler MNEF
Alex (48) har lang erfaring som leder i eiendomsmeglerbransjen og har vært en sentral drivkraft i oppbyggingen av flere meglerforetak på Sørlandet. Han har også hatt styreverv i Norges Eiendomsmeglerforbund (NEF), både som styreleder i den lokale avdelingen og som varamedlem i NEFs sentralstyre.
Alex bor på Fagerholt med samboer, tre barn, hund og katt.
«Megleryrket er mer enn bare en jobb. Jeg brenner for kontakten med mennesker og gleden av å veilede dem gjennom viktige faser i livet».